Partners Login
  • 100 m from Amenities
  • 200 m from School
  • 500 m from the Beach
  • 50 km from Airport
  • 100 m from Public Transport
  • 500 m from Resort

Project Description

Nestled on Filikis Etaireias Street near Gladstonos Ave, SEQUOIA offers urban living in Limassol's vibrant heart. Adjacent to Lemesou B’ Elementary School, this premier development provides immediate access to high-street shops, cafes, restaurants, schools, and pharmacies.

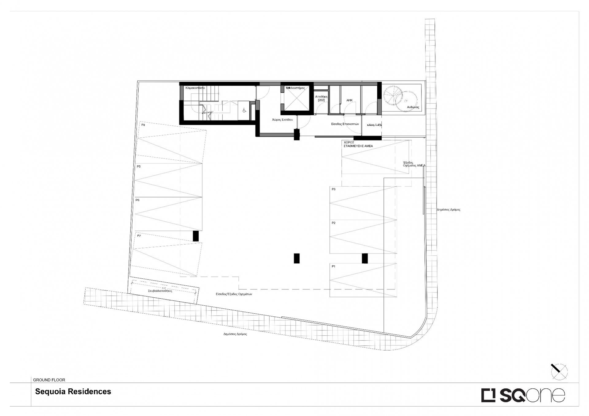
SEQUOIA features a selection of two one-bedroom, three two-bedroom, and two three-bedroom apartments, each with a dedicated parking space. The building ensures security with a camera-controlled main entrance.

Experience the essence of modern city life with SEQUOIA – where convenience meets quality in Limassol’s bustling center. Enjoy contemporary amenities, secure living, and a prime location in this expertly designed residence.

Get in touch
Property Type Residential
Location Agia Zoni
Status
Expected Completion Date
Energy Efficiency Grade A

Floor Plans

Project Location

Get Directions

Learn More

For inquiries, please leave us your details.

Thank you for your message!

Follow us on Instagram

@sqone_properties